RCC Precast FT Flume Drain
RCC PRECAST FT FLUME DRAIN
Precast FT Flume are used as storm water drains and as cable trenches. The pre-casting process offers customizable solutions to allow for precise and effortless installation. Additionally, based on its intended use Pacific offers weep holes to permit water run-off and insert plates to allow for segmentation of cables.
Designs are dependent on project specifications and applications. Lateral earth loads from soil and hydrostatic loads from ground water. Vertical loads from the cover soil and live loads above. Surcharge loads from nearby impact loads. Seismic loads where applicable. After determining the size and design parameters required the appropriate ISO standards are used to provide the most economical design.
Medium Duty: Designed for lateral earth pressure and hydrostatic loads from ground water, live load supercharge and adjacent vehicular traffic.
Heavy Duty: Designed for lateral earth pressure and hydrostatic loads from ground water, live load supercharge and direct heavy vehicular loading.
Pacific FT Flume are cast using concrete with a low w/c ratio; it is poured into steel mechanized equipment called precast molds. Rebar is preplaced and secured inside the mould. Form vibrators are used to consolidate concrete to attain homogeneity and release any trapped air. Hole formers may be incorporated, or coring is done if needed. The product is then stripped and the mould is reused.
At every stage meticulous testing is done to maintain quality. Every concrete batch undergoes cube testing to ensure strength parameters are met along with slump testing to ensure consistence in the mix design. After demoulding the product goes through visual inspection to ensure no honey-combing, voids or cracks are present. In case any test fails the batch will be rejected.
Pacific FT Flume are designed to be installed with ease, requiring very little excavation to place and a minimal amount of backfill. box culverts are supplied with lifting anchors to make lifting and placing both easy and precise.
Soil excavation followed by base preparation; levelled to ensure easy alignment of FT Flume and prevent settling of soil. In the case where the water table is located in the trench zone, dewatering methods must be employed to remove the water.
Backfill of soil should be granular and be compacted layer by layer beginning form the side walls to top of the box sections to attain the required minimum density.
Bends can be designed during manufacturing to allow for curved pathing during installation.
Male/Female joints are provided for Box Culverts to slide and lock into place. Furthermore erosion control seals, rubber rings, exterior joint wraps, expanding water stop seals or grouts can be used to make the joints watertight as required.
Based on the topography of the land we can manufacture FT Flume of different depths to maintain top level or have them step down by using drains of a constant depth.

ABOUT THE PRODUCTS
Precast FT Flume are used as storm water drains and as cable trenches. The pre-casting process offers customizable solutions to allow for precise and effortless installation. Additionally, based on its intended use Pacific offers weep holes to permit water run-off and insert plates to allow for segmentation of cables.
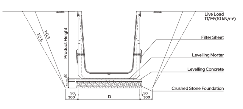
Typical Foundation Details
Front View
Side View
Typical Groove for Joint
| Dimensions of FT Flume (mm) |
H: 900 (H1: 995)
| Width: B | 600 | 700 | 800 | 900 | 1000 | 1100 | 1200 | 1300 | 1400 | 1500 | 1600 | 1700 | 1800 |
|---|---|---|---|---|---|---|---|---|---|---|---|---|---|
| B1 | 780 | 880 | 980 | 1080 | 1180 | 1280 | 1380 | 1480 | 1580 | 1680 | 1780 | 1880 | 1980 |
| C | 465 | 565 | 665 | 765 | 865 | 965 | 1065 | 1165 | 1265 | 1365 | 1465 | 1565 | 1665 |
| D | 740 | 840 | 940 | 1040 | 1140 | 1240 | 1340 | 1440 | 1540 | 1640 | 1740 | 1840 | 1940 |
H: 1000 (H1: 1150)
| Width: B | 600 | 700 | 800 | 900 | 1000 | 1100 | 1200 | 1300 | 1400 | 1500 | 1600 | 1700 | 1800 |
|---|---|---|---|---|---|---|---|---|---|---|---|---|---|
| B1 | 780 | 880 | 980 | 1080 | 1108 | 1280 | 1380 | 1480 | 1580 | 1680 | 1780 | 1880 | 1980 |
| C | 450 | 550 | 650 | 750 | 850 | 950 | 1050 | 1150 | 1250 | 1350 | 1450 | 1550 | 1650 |
| D | 740 | 840 | 940 | 1040 | 1140 | 1240 | 1340 | 1440 | 1540 | 1640 | 1740 | 1840 | 2140 |
H: 1200 (H1: 1310)
| Width: B | 800 | 900 | 1000 | 1100 | 1200 | 1300 | 1400 | 1500 | 1600 | 1700 | 1800 | 1900 | 2000 |
|---|---|---|---|---|---|---|---|---|---|---|---|---|---|
| B1 | 980 | 1080 | 1180 | 1280 | 1308 | 1480 | 1580 | 1680 | 1780 | 1880 | 1980 | 2080 | 2180 |
| C | 620 | 720 | 820 | 920 | 1020 | 1120 | 1220 | 1320 | 1420 | 1520 | 1620 | 1720 | 1820 |
| D | 940 | 1040 | 1140 | 1240 | 1340 | 1440 | 1540 | 1640 | 1740 | 1840 | 1940 | 2040 | 2140 |
H: 1300 (H1: 1420)
| Width: B | 800 | 900 | 1000 | 1100 | 1200 | 1300 | 1400 | 1500 | 1600 | 1700 | 1800 | 1900 | 2000 |
|---|---|---|---|---|---|---|---|---|---|---|---|---|---|
| B1 | 1000 | 1100 | 1200 | 1300 | 1400 | 1500 | 1600 | 1700 | 1800 | 1900 | 2000 | 2100 | 2200 |
| C | 605 | 705 | 805 | 905 | 1005 | 1105 | 1205 | 1305 | 1405 | 1505 | 1605 | 1705 | 1805 |
| D | 960 | 1060 | 1160 | 1260 | 1360 | 1460 | 1560 | 1660 | 1760 | 1860 | 1960 | 2060 | 2160 |
H: 1400 (H1: 1530)
| Width: B | 800 | 900 | 1000 | 1100 | 1200 | 1300 | 1400 | 1500 | 1600 | 1700 | 1800 | 1900 | 2000 |
|---|---|---|---|---|---|---|---|---|---|---|---|---|---|
| B1 | 1000 | 1100 | 1200 | 1300 | 1400 | 1500 | 1600 | 1700 | 1800 | 1900 | 2000 | 2100 | 2200 |
| C | 590 | 690 | 790 | 890 | 950 | 1090 | 1190 | 1290 | 1390 | 1490 | 1590 | 1690 | 1790 |
| D | 960 | 1060 | 1160 | 1260 | 1360 | 1460 | 1560 | 1660 | 1760 | 1860 | 1960 | 2060 | 2160 |
H: 1500 (H1: 1640)
| Width: B | 800 | 900 | 1000 | 1100 | 1200 | 1300 | 1400 | 1500 | 1600 | 1700 | 1800 | 1900 | 2000 |
|---|---|---|---|---|---|---|---|---|---|---|---|---|---|
| B1 | 1000 | 1100 | 1200 | 1300 | 1400 | 1500 | 1600 | 1700 | 1800 | 1900 | 2000 | 2100 | 2200 |
| C | 575 | 675 | 775 | 875 | 975 | 1075 | 1175 | 1275 | 1375 | 1475 | 1575 | 1675 | 1775 |
| D | 960 | 1060 | 1160 | 1260 | 1360 | 1460 | 1560 | 1660 | 1760 | 1860 | 1960 | 2060 | 2160 |
H: 1600 (H1: 1740)
| Width-B | 800 | 900 | 1000 | 1200 | 1300 | 1400 | 1500 | 1600 | 1700 | 1700 | 1800 | 1900 | 2000 |
|---|---|---|---|---|---|---|---|---|---|---|---|---|---|
| B1 | 1000 | 1100 | 1200 | 1400 | 1500 | 1600 | 1700 | 1800 | 1800 | 1860 | 2000 | 2100 | 2200 |
| C | 960 | 1060 | 1160 | 1360 | 1460 | 1560 | 1660 | 1760 | 1860 | 1580 | 1960 | 2060 | 2160 |
| D | 960 | 1060 | 1160 | 1360 | 1460 | 1560 | 1660 | 1760 | 1860 | 1820 | 1960 | 2060 | 2160 |
H: 1800 (H1: 1940)
| Width-B | 800 | 900 | 1000 | 1100 | 1200 | 1300 | 1400 | 1500 | 1600 | 1700 | 1800 | 1900 | 2000 |
|---|---|---|---|---|---|---|---|---|---|---|---|---|---|
| B1 | 1070 | 1170 | 1270 | 1370 | 1470 | 1570 | 1670 | 1770 | 1870 | 1970 | 2070 | 2170 | 2270 |
| C | 530 | 630 | 730 | 830 | 930 | 1030 | 1130 | 1230 | 1330 | 1430 | 1530 | 1630 | 1730 |
| D | 990 | 1090 | 1190 | 1290 | 1390 | 1490 | 1590 | 1690 | 1790 | 1890 | 1990 | 2090 | 2190 |